1. Accueil
  2. Achat
  3. Achat Terrain
  4. Achat Terrain LE MERZER (22200)

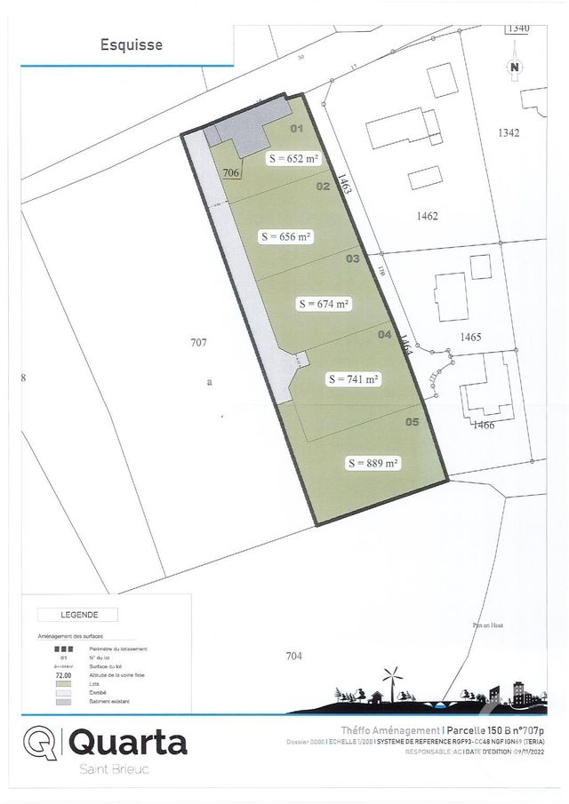
Terrain à vendre 741 m2 LE MERZER - 22

Ref : 1145

57 000 €

  • Honoraires charge vendeur
terrain à vendre - 741.0 m2 - LE MERZER - 22 - BRETAGNE - Century 21 Le Calvez
terrain à vendre - 741.0 m2 - LE MERZER - 22 - BRETAGNE - Century 21 Le Calvez
terrain à vendre - 741.0 m2 - LE MERZER - 22 - BRETAGNE - Century 21 Le Calvez
terrain à vendre - 741.0 m2 - LE MERZER - 22 - BRETAGNE - Century 21 Le Calvez
terrain à vendre - 741.0 m2 - LE MERZER - 22 - BRETAGNE - Century 21 Le Calvez
terrain à vendre - 741.0 m2 - LE MERZER - 22 - BRETAGNE - Century 21 Le Calvez
Exclusivité
Envoyer un message
Message
Envoyer ce bien à un ami

Description

Vous souhaitez réaliser votre rêve de construire votre propre maison ?


Nous vous proposons aujourd'hui à la vente, ce terrain plat à bâtir, situé au calme, dans le futur lotissement de la Route de Bel-Air (5 lots), à moins d'1 km du bourg du Merzer, et à 5 min de la zone commerciale de Saint-Agathon offrant toutes les commodités (boulangeries, supermarché, pharmacie ...).


A visiter sans tarder !



LOT N°4 - 741 m2

Localisation

Laissez-nous vos coordonnées pour obtenir la localisation

Envoyer

Afficher sur la carte :

Demander la localisation

Vue globale

  • Surface totale : 741 m2

Équipements

Général

  • bornage

À savoir

Les performances énergétiques

Non soumis au DPE

Envoyer à un ami

Envoyer

Envoyer un message :

Envoyer

Créer votre alerte

Rappel de vos critères de recherche :

Erreur dans les critères envoyés

Limite d'alertes atteinte

Cette alerte existe déjà

Cette alerte est déjà enregistrée pour cette adresse email. Vous continuerez à recevoir les biens correspondant à vos critères.

Une erreur est survenue

Merci de réessayer ultérieurement.

Votre alerte a été créée

Vous recevrez les biens correspondant à vos critères.

logo vente privées

48h

d’avance sur
le marché

Prenez un temps d’avance sur le marché en profitant gratuitement des Ventes Privées CENTURY 21

Si ce n’est déjà fait, allez compléter le profil de votre compte afin de pouvoir recevoir en avant-première des biens exclusifs, réservés à nos clients pendant les 48 premières heures suivant leur commercialisation.

Nos agences proposent régulièrement des biens comme celui que vous cherchez

Ne ratez pas une opportunité, on vous alerte en priorité !

Êtes-vous actuellement propriétaire de votre bien ?
Créer une alerte
Je souhaite être alerté
Voir les biens correspondants